Maison La Bernerie En Retz 5 pièce(s) 94.5 m2
384 800€**- Référence 330
- Prix 384 800€
- Type de propriété Maison
- Statut de la propriété À vendre
- Pièces 5
- Chambres 3
- Salles de bains 1
- Année de construction 2017
- Taille 95.52 m2
- Superficie du terrain 300 m2
- Mandat Simple
- Mode de chauffage Mixte_Sol_Convecteur
- Fenêtres PVC Double Vitrage
- Assainissement Tout à l'égout
- Mécanisme de chauffage Mixte_Sol_Convecteur
- Consommation énergétique B
- État propriété En cours
- Date de publication 2025-12-10 10:33:47
Description
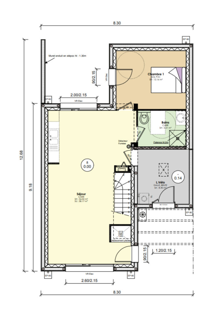
* SOUS OFFRE ACCEPTEE * LA BERNERIE-EN-RETZ – Dans un environnement calme et recherché, à proximité immédiate du centre et de la grande plage, maison, construction 2017, de 94m2 implantée sur une parcelle d’environ 300m2.
Ce bien offre au rez-de-chaussée, une pièce de vie traversante avec cuisine ouverte aménagée, un cellier, une chambre et une salle d’eau avec WC.
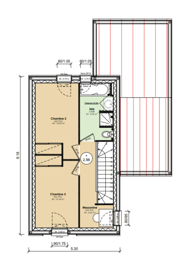
A l’étage le palier dessert deux chambres avec placards et une salle de bains complète avec WC.
L’extérieur comprend une terrasse (dalle béton), un chalet en PVC pour le stockage et un jardin. Stationnement sur la parcelle.
Chauffage au sol par pompe à chaleur.
Bail d’habitation en cours.
Les informations sur les risques auxquels ce bien est exposé sont disponibles sur le site Géorisques https://www.georisques.gouv.fr (4.00 % honoraires TTC à la charge de l’acquéreur.)